Property
Beds
4
Full Baths
3
1/2 Baths
1
Year Built
2025
Sq.Footage
3,037
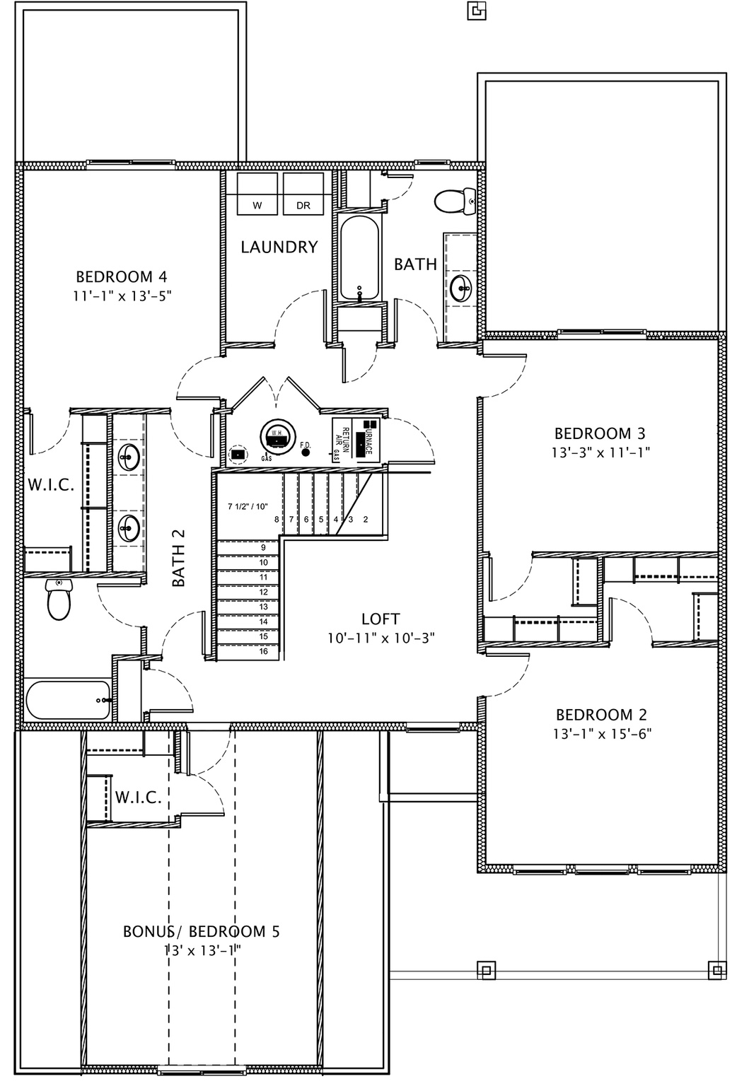
Now under construction with a unique lot and great views. 5 bedrooms (primary on main) + office/den, RV/boat parking, and no rear neighbors. The lot spans from street to street, offering privacy and the ability to add a detached garage/ADU at the back or create a pull-through driveway. Quiet community great for family, just minutes to BLM land, Sand Hollow Reservoir, and golf. Excellent floor plan with 2x6 exterior walls. Block walls installed on both sides and across the back with gate access. Large backyard with covered patio and evening shade. 2-car garage deep enough for truck/SUV. Includes 1-year builder warranty. Estimated completion February 2026.
Features & Amenities
Interior
-
Other Interior Features
Master Downstairs
-
Total Bedrooms
4
-
Bathrooms
3
-
1/2 Bathrooms
1
-
Cooling YN
YES
-
Cooling
Ceiling Fan(s), Central Air
-
Fireplace YN
NO
-
Heating YN
YES
-
Heating
Forced Air
-
Main Level Bedrooms
1
-
Pet friendly
N/A
Exterior
-
Garage
Yes
-
Garage spaces
2
-
Construction Materials
Stucco
-
Parking
Attached
-
Patio and Porch Features
Covered
-
Pool
No
Area & Lot
-
Lot Size(acres)
0.21
-
Property Type
Residential
-
Property Sub Type
Single Family Residence
-
Architectural Style
Stories: 2
Price
-
Sales Price
$667,000
-
Tax Amount
2504.0
-
Sq. Footage
3, 037
-
Price/SqFt
$219
HOA
-
Association
Yes
-
Association Fee
$25
-
Association Fee Frequency
Monthly
-
Association Fee Includes
N/A
School District
-
Elementary School
Washington
-
Middle School
Hurricane Intermediate
-
High School
Hurricane
Property Features
-
Stories
2
-
Senior Community YN
NO
Schedule a Showing
Showing scheduled successfully.
Mortgage calculator
Estimate your monthly mortgage payment, including the principal and interest, property taxes, and HOA. Adjust the values to generate a more accurate rate.
Your payment
Principal and Interest:
$
Property taxes:
$
HOA fees:
$
Total loan payment:
$
Total interest amount:
$
Location
County
Washington
Elementary School
Washington
Middle School
Hurricane Intermediate
High School
Hurricane
Listing Courtesy of Dusty Wright , KW Ascend Keller Williams Realty
RealHub Information is provided exclusively for consumers' personal, non-commercial use, and it may not be used for any purpose other than to identify prospective properties consumers may be interested in purchasing. All information deemed reliable but not guaranteed and should be independently verified. All properties are subject to prior sale, change or withdrawal. RealHub website owner shall not be responsible for any typographical errors, misinformation, misprints and shall be held totally harmless.
The Boss
KornelijeJosić
Call Kornelije today to schedule a private showing.
* Listings on this website come from the FMLS IDX Compilation and may be held by brokerage firms other than the owner of this website. The listing brokerage is identified in any listing details. Information is deemed reliable but is not guaranteed. If you believe any FMLS listing contains material that infringes your copyrighted work please click here to review our DMCA policy and learn how to submit a takedown request.© 2024 FMLS.